Ingenieurleistungen Hydrogeologie

Unsere hydrogeologischen Ingenieurleistungen umfassen die

- Darstellung der geologischen und hydrogeologischen Verhältnisse im Bereich hydrogeologischer Aufschlussbohrungen sowie dem regionalen Umfeld in Karten und Texten

- Auswertung und Darstellung der Konzentrationen und des Verteilungsmusters verschiedener Wasserinhaltsstoffe in Karten, Texten und Tabellen

- Berechnung und Darstellung der Grundwasserfließrichtung und des Grundwassergefälles in Grundwassergleichenkarten (Isohypsenpläne)

- Durchführung und Auswertung von Kurzzeitpumpversuchen zur Festlegung der Brunnencharakteristika

- Durchführung und Auswertung von Langzeitpumpversuchen zur Berechnung von kf-Werten und Transmissivitäten des Aquifers, Berechnungen zur Ausdehnung von Absenktrichtern sowie Reichweitenbestimmungen des Einzugsgebietes

- Datenerfassung für Bilanzierungen und Einzugsgebietsermittlungen

- Betreuung und Auswertung von Langzeit-Monitorings und Grundwasserhaltungsmaßnahmen

- Berechnung, Dimensionierung und Optimierung von Mehrbrunnenanlagen bei geplanten Grundwasserhaltungsmaßnahmen

- Gutachterliche Bewertung der durchgeführten Untersuchungen sowie Empfehlungen zur weiteren Vorgehensweise

Bild vergrößern

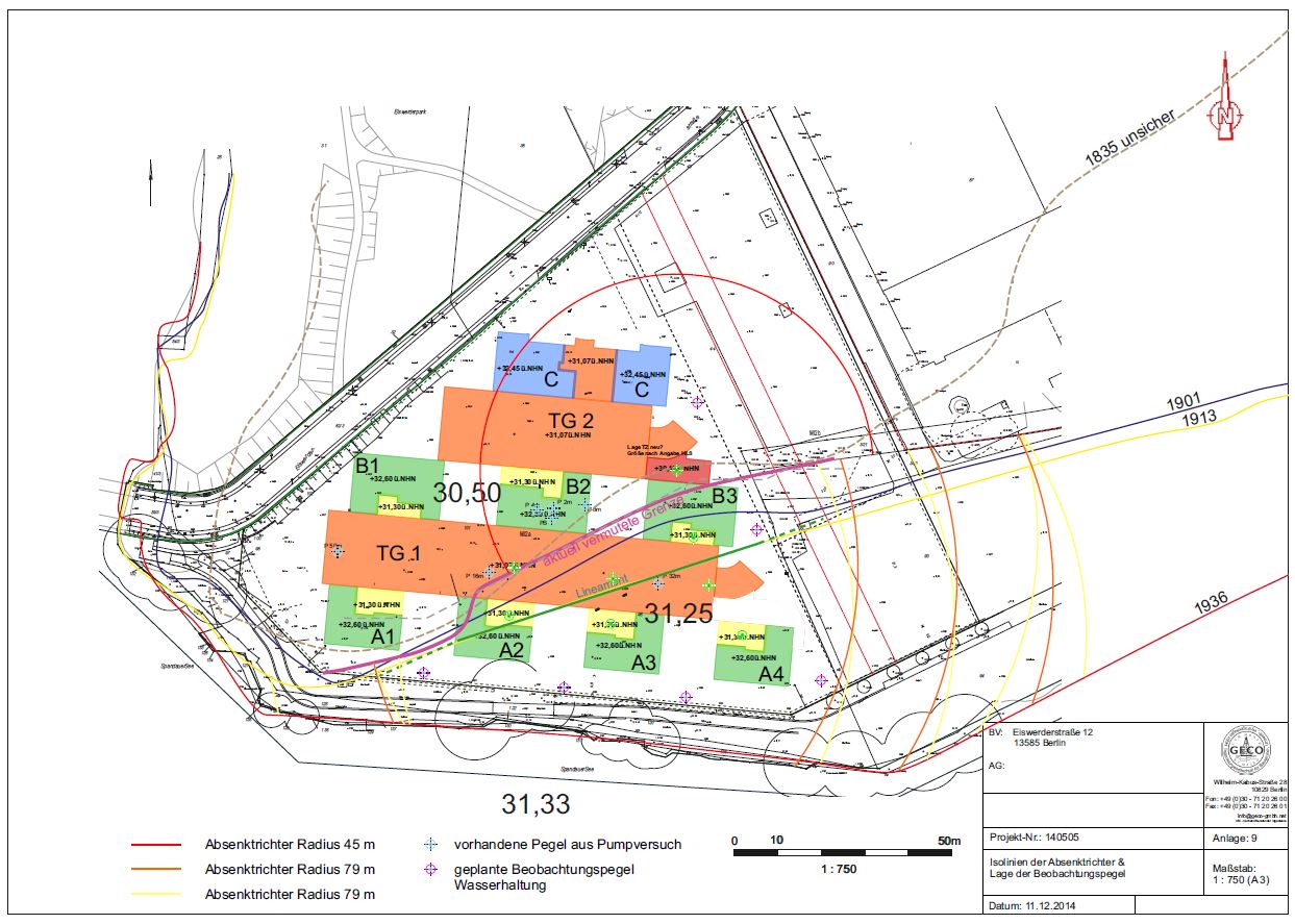
Darstellung verschiedener Absenktrichter im Zusammenhang mit Berechnungen von Teil-Wasserhaltungen auf einem Baufeld für neun Apartmenthäuser und zwei Tiefgaragen in Berlin-Spandau

Bild vergrößern

Isohypsenplan mit Grundwassergleichen in Meter über NHN mit Darstellung der Grundwasserfließrichtung

Bild vergrößern

Auswertediagramm eines Pumpversuchs nach Cooper & Jacob: kf-Wert und Transmissivität des Aquifers

GECO GmbH – Geotechnische Exploration und Consulting
Wilhelm-Kabus-Str. 28, Naumann-Park, Haus 3.2, 10829 Berlin
Telefon +49 30 71 20 26 00 |
 
Seite drucken | Seite weiterempfehlen
Digitale Visitenkarte (VCF) herunterladen | Impressum
 
Geschäftsführer: Dr. Eckhard Wipfler, Björn Kremmin