Ingenieurleistungen Baugrund

Unsere Ingenieurleistungen umfassen die

- Darstellung der geologischen / hydrogeologischen Verhältnisse des Baugrunds in Schichtprofilen, Schnitten, Karten und Texten

- Auswertung und Darstellung von bodenmechanischen Laboruntersuchungen

- Interpretation und Darstellung von Drucksondierergebnissen in Diagrammen und Texten

- Festlegung der Bodenkennwerte gemäß DIN 1054 bzw. EC 7 und anderen techn. Regeln und DINs

- Detaillierte Setzungsberechnungen des Bodens bzw. der zu erwartenden Setzungsunterschiede auf dem Baufeld

- Berechnung der zulässigen Bodenpressungen / Setzungen bei unterschiedlichen Fundamentkonfigurationen und Lastfällen für Streifen- und Plattenfundamente

- Vorbemessungen und/oder dezidierte Berechnungen von Pfahlgründungen, inklusive der Diskussion und Darstellung alternativer Pfahlsysteme

- Berechnung von Steife- und Bettungsmoduln

- Berechnung der dynamischen Drehfedersteifigkeit zur Überprüfung von erdstatischen Vorgaben für den Baugrund von Windkraftanlagen und ähnlichen Turmbauwerken

- Berechnung der Grenztiefe des Lastabtrags (in erster Näherung bereits vor den Bohrarbeiten, um die notwendige Bohr- und Sondiertiefe festlegen zu können)

- rechnerischen Nachweise der Grundbruchsicherheit

- Dezidierte Berechnungen zur Optimierung von Mehrbrunnenanlagen für Wasserhaltungsmaßnahmen in Baugruben

- Bemessungen zum Planum und zum Unterbau von Verkehrs- und Stellflächen gemäß RstO 12

- Bewertung der Versickerungsfähigkeit der geologischen Schichten für nicht schädlich verunreinigtes Grundwasser nach ATV und anderen technischen Regeln und Vorgaben

- gutachterliche Gesamtbewertung des Baufelds in Bezug auf den geplanten Hochbau sowie Gründungsempfehlung und ggf. Empfehlungen zu notwendigen Bodenverbesserungs- und/oder Tiefgründungsmaßnahmen

- Empfehlungen zur Baugrube, zu Böschungen und Verbau

Bild vergrößern

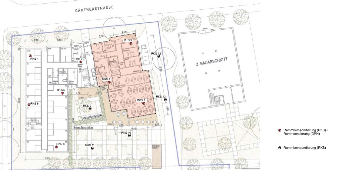
Planung der Erkundung eines Baufelds für eine Seniorenresidenz in Berlin-Weißensee inklusive Altlasen-Vorerkundung

Bild vergrößern

Bemessung von Streifenfundamenten mit Bodenaufbau, Lastabtrag und Grundbruchfigur

Bild vergrößern

Schichtenprofil und Bodenkennwerte sowie die Bemessung eines Atlaspfahls

Bild vergrößern

Elastisch gebettete Bodenplatte eines Turmbauwerks mit Lasten, Setzungen und angreifenden Momenten zur Bestimmung der Drehfedersteifigkeit

Bild vergrößern

Drucksondierdiagramm (CPT) mit einer Auswertung hinsichtlich Schichtenaufbau, Lagerungsdichte und Steifemoduln

GECO GmbH – Geotechnische Exploration und Consulting
Wilhelm-Kabus-Str. 28, Naumann-Park, Haus 3.2, 10829 Berlin
Telefon +49 30 71 20 26 00 |
 
Seite drucken | Seite weiterempfehlen
Digitale Visitenkarte (VCF) herunterladen | Impressum
 
Geschäftsführer: Dr. Eckhard Wipfler, Björn Kremmin